Hacer
ciudad desde lo preexistente, Reurbano.
Manuel Dublán 46.
Por Iván Hinojosa Medrano*
El
tema de la sustentabilidad en todos los ámbitos de nuestras vidas se empieza a
convertir en algo común, es por eso que, en nuestro quehacer como arquitectos,
nos preguntamos ¿cuál es la responsabilidad que tenemos al ejercer la práctica
de la arquitectura, al construir y vivir la ciudad en donde habitamos?
Desde
hace unos años, algunos arquitectos se han preocupado por la manera en que
construimos nuestras ciudades, y por lo tanto buscan soluciones más sostenibles
para redensificar la ciudad. No es un tema nuevo que hace tiempo han surgido
estrategias que nos permiten contrarrestar los efectos negativos de la
elaboración de materiales de construcción, la urbanización acelerada en las
periferias de las ciudades, así como disminuir los efectos negativos que deja construir
desde cero una obra.
Oficinas
de arquitectura como; Inca Hernández, JSa, BAAQ, COOP entre otros, se han
preocupado por realizar una práctica más consciente del sector inmobiliario,
así como hacer ciudad sobre lo preexistente. Varios factores son los detonantes
de esta reutilización, por ejemplo; poder redensificar y crecer verticalmente
las ciudades; la valoración del patrimonio edilicio; cuidar el medio ambiente
por medio de la reutilización; económicamente la construcción cuesta menos y a
su vez el precio de venta por metro cuadrado es más elevado por encontrarse en
buenas ubicaciones.
Ubicación Manuel Dublán 46.
|
|
Ubicación Manuel Dublán 46.
Lo
anterior viene al caso a la hora de acercarnos a valorar la obra de Reurbano,
un desarrollador inmobiliario que nació hace más de una década en la ciudad de
México, siendo pioneros en la regeneración urbana por medio de la reutilización
de edificios, algunos de ellos patrimoniales. Esta oficina cuenta con más de 12
edificios reutilizados, y más de 10 premios nacionales e internacionales. Se
distingue por la colaboración de diferentes oficinas de arquitectura que los apoyan
con el proyecto arquitectónico, tales como; at103, Cadaval
& Solà-Morales, y Productora, este último
realizo recientemente la propuesta para la reutilización del edificio ubicado
en Manuel Dublán 46.
Estado original de Manuel Dublán 46.
Para
hacer algunos comentarios en relación al trabajo profesional de Reurbano, nos
vamos a referir específicamente a una de sus obras; el edificio de
departamentos conocido como Dublán 46, del año 2021, ubicado en la calle de
Manuel Dublán No. 46, colonia Tacubaya, en la delegación Miguel Hidalgo, en la
ciudad de México.
El
entorno urbano donde se ubica está obra está constituido predominantemente por
construcciones de uno a dos niveles, que, salvo contadas excepciones son de
poco valor arquitectónico. Está destinado principalmente a viviendas con
algunos servicios y comercios de barrio, entorno que se ha ido modificando al
pasar de los años con la aparición de edificios de densidades de entre tres y
cuatro niveles; calles muy angostas; alto tránsito vehicular y peatonal
ocasionado por el metro Tacubaya, el Hospital Escandón y el Mercado Ing.
Gonzalo Peña Manterola. En cuanto a infraestructura, se tiene resuelto lo que
tiene que ver con agua potable, drenaje y energía eléctrica.
Sobre
un terreno a espaldas del Hospital Escandón; de geometría rectangular; con una
superficie aproximada de 360 metros cuadrados y un frente de 13 metros, el
proyecto de reutilización se ordena a partir de proporciones simples y
regulares, manteniendo una configuración de “L” que es la distribución original.
Se conservo el patio original definiendo con claridad las circulaciones
verticales y horizontales, remetiendo solo un poco el volumen nuevo que se
encuentra sobre la casa, teniendo algunos departamentos orientación norte-sur y
otros al este, cumpliendo con la iluminación y ventilación natural requeridas.
La
casa original del sigo XlX, cuenta con dos niveles, con alturas de entrepiso de
entre 4.00 y 5.00 metros, y se agregaron cuatro niveles con un entrepiso de
2.60 metros, alojando diecisiete departamentos de entre 41 y 141 metros
cuadrados, así como dos locales comerciales. La estructura está resuelta con
marcos rígidos de concreto armado y losas aparentes, no se cuenta con cajones
de estacionamiento y en su patio se cuenta con unos grandes árboles.
Vista aérea de Manuel Dublán 46.
El
acceso al edificio es muy generoso, se cuenta con estacionamiento para
bicicletas y se mantuvieron prácticamente todos los detalles estéticos de la
casa original. Se agregó una escalera escultórica, que estéticamente es muy
impresionante, sin embargo, tendríamos que ver cómo se comporta en un sismo. Es
interesante la elección de los acabados; las alturas son adecuadas; la mayoría
de los departamentos están bien iluminados y ventilados; así mismo se cuenta
con el suficiente número de prototipos para poder elegir uno de acuerdo a las
necesidades de cada persona.
Se
acertó en tomar la decisión de conservar dos locales comerciales y los árboles en
la planta baja, esto le regresa de alguna manera su esencia de barrio. Las
escaleras son todas metálicas y se sujetan siempre a estructura nueva, así
mismo se dejaron varios partes sin acabado para poder ver los muros originales.
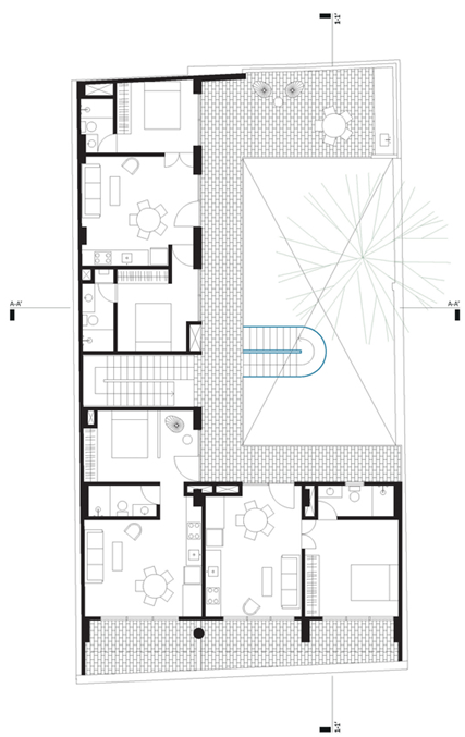
Planta nivel 3 Dublán 46
(proyecto nuevo)
|
|
Planta nivel 1 (pb) Dublán
46 (casa original)
|
|
Planta nivel 3 Dublán 46 (proyecto nuevo)
Pienso
que la superposición del proyecto nuevo sobre la casa original le resta valor
al inmueble y al proyecto. Se entiende que el mundo inmobiliario es un tema de
metros cuadrados vendibles, pero esta no era la mejor solución. También me
parece que el remetimiento de la fachada principal del nuevo proyecto hacia la
calle de Manuel Dublán no es la suficiente, ya que no respeta la jerarquía de la casa
original ni las proporciones de alturas colindantes, por lo que debió de
resolverse de manera distinta.
En
general los departamentos más grandes están bien resueltos, sin embargo, hay un
par que son extremadamente compactos, llegando al punto de tener que acceder a
ellos por la recamara. Otros puntos negativos son; que no se logró conservar
las losas originales de la casona, sustituyéndolas por losas de concreto armado;
que el tema de la privacidad no está bien resuelto pues para entrar a tu
departamento tienes que pasar por las ventanas de los vecinos y que el edificio
no cuenta con elevador y esto no cumple con el reglamento de construcción, el
cual indica que se debe contar con este a partir de 13 metros verticales o más
de 4 niveles. Reurbano
resuelve el edificio con departamentos pequeños y sin estacionamiento para
gente que trabaja en casa, que usa el transporte público o la bicicleta.

La
movilidad es buena dado a su ubicación y cercanía al metro, sin embargo, se
debe pensar también de dotar
a la zona de espacios públicos, equipamiento y de mayor seguridad, ya que el
incremento en la densidad de población sin cajones de estacionamiento a la
larga podría convertirse en un problema. Por lo que pienso que el edificio solo
está bien resuelto en su estética, pero no en su proyecto arquitectónico. Sin duda el construir sobre lo ya edificado
tiene sus limitaciones, con todo ello, es una opción viable para el crecimiento
vertical de las ciudades. Esta manera de ver y entender la arquitectura será
replicándose como una manera natural del crecimiento de estas.
Resulta
entonces importante que las nuevas generaciones de arquitectos, refuercen la
idea de la reutilización como una manera de abordar los problemas
arquitectónicos, especialmente el de la vivienda, que se propongan nuevos
materiales y procedimientos constructivos, que den forma a las ciudades que
habitamos. Tal es el caso de Reurbano, que, a pesar de las dificultades y
errores, son pioneros en la reutilización de edificaciones. Sin duda es una de
las oficinas que tendrá que seguir trabajando y explorando nuevas técnicas para
tener proyectos de reutilización más viables arquitectónicamente y no solo
financieramente. Lo importante es que se siga haciendo ciudad sobre lo
preexistente y aseguremos su preservación.
*Arquitecto
y estudiante de la Maestría en Reutilización del Patrimonio Edificado, UAM.
Xochimilco.
Agosto, 2022.
Fuentes
de las imágenes: del autor, Google Maps y Reurbano.